|
定荣家轻钢别墅 既满足了舒适、安全、温暖的高品质居住要求 又具有非常漂亮的外观 还具有省时、省力、省钱 省事,省心—五省特点 越来越受到老百姓的青睐 有喜欢轻钢别墅的友友 可以参考下面三套别墅户型哦 韵风别苑
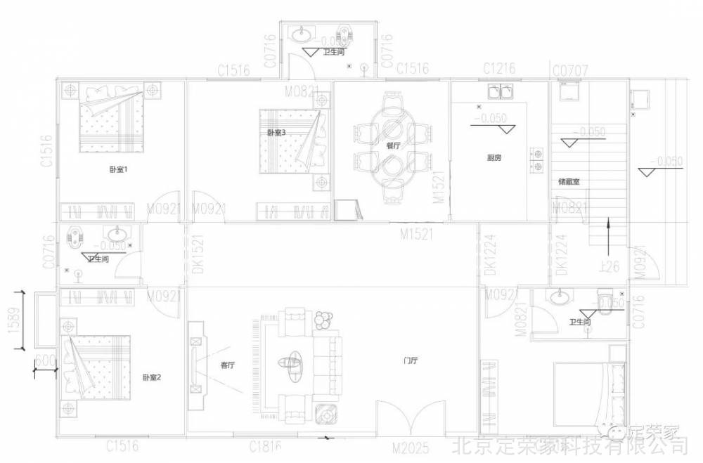
项目名称:韵风别苑 基本信息:一层 建筑层高:一层3m 占地尺寸:18.9m*13.3m 室内布局:四室一厅一卫 面积:100.4m² 外墙材料:水泥纤维挂板,文化石 屋顶材料:欧式沥青瓦
私人订制 项目名称:私人定制 基本信息:二层 建筑层高:一层3.2m 二层2.8m 占地尺寸:16.1m*11.7m 室内布局:五室三厅三卫 面积:245m² 外墙材料:水泥纤维挂板,文化石 屋顶材料:欧式沥青瓦
私人订制
建筑层高:一层3.5m,二层3.2m,三层3.2m 室内布局:六室两厅一厨六卫 客厅挑空,带阳台、露台
|









