|
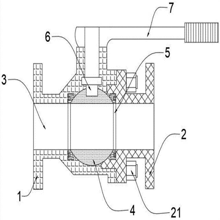
Q41F浮动式软密封不锈钢球阀技术规范 由很多的小螺丝、阀门和球阀等小部件组成,对于螺栓和阀门相信很多人们是了解的,但是说到球阀估计就没有那么多人认识了,不锈钢球阀的是靠旋转阀芯来使阀门畅通或闭塞。球阀开关轻便,体积小,可以做成很大口径,密封可靠,结构简单,维修方便,密封面与球面常在闭合状态,不易被介质冲蚀,在各行业得到广泛的应用 也叫浮动式软密封球阀,也叫浮动式球阀,软密封浮动球阀,是指采用铸钢或者不锈钢阀体,浮动球结构,四氟或者PPL软材料密封的球阀,用于 Class150~Class1500、PN16~PN63、JIS10K~JIS20K 的各种管路上,用于截断或接通管路中的介质,选用不同的材质,可分别适用于水、蒸汽、油品、液化气、天然气、煤气、硝酸、醋酸、氧化性介质、尿素等多种介质。
Q41F浮动式软密封不锈钢球阀技术规范的日常维护方法 1、必须先查明球阀上、下游管道确已卸除压力后,才能进行拆卸分解操作。 2、分解及再装配时必须小心防止损伤零件的密封面,特别是非金属零件,取出O型圈时宜使用专用工具。 3、装配时不锈钢球阀法兰上的螺栓必须对称、逐步、均匀地拧紧。 4、不锈钢球阀非金属零件清洗后应立即从清洗剂中取出,不得长时间浸泡。 5、清洗后需待被洗壁面清洗剂挥发后(可用未浸清洗剂的绸布擦)进行装配,但不得长时间搁置,否则会生锈、被灰尘污染。 6、不锈钢球阀新零件在装配前也需清洗干净。 7、使用润滑脂润滑。润滑脂应与球阀金属材料、橡胶件、塑料件及工作介质均相容。工作介质为燃气时,可用例如特221润滑脂。在密封件安装槽的表面上涂一薄层润滑脂,在橡胶密封件上涂一薄层润滑脂,阀杆的密封面及摩擦面上涂一薄层润滑脂。 8、不锈钢球阀装配时应不允许有金属碎屑、纤维、油脂(规定使用的除外)灰尘及其它杂质、异物等污染、粘附或停留在零件表面上或进入内腔。
Q41F浮动式软密封不锈钢球阀技术规范的优点 1、流体阻力小,其阻力系数与同长度的管段相等。 2、结构简单、体积小、重量轻。 3、紧密可靠,球阀的密封面材料广泛使用塑料、密封性好,在真空系统中也已广泛使用。 4、操作方便,开闭迅速,从全开到全关只要旋转90°,便于远距离的控制。 5、维修方便,球阀结构简单,密封圈一般都是活动的,拆卸更换都比较方便。 6、在全开或全闭时,球体和阀座的密封面与介质隔离,介质通过时,不会引起阀门密封面的侵蚀。 7、适用范围广,通径从小到几毫米,大到几米,从高真空至高压力都可应用。
Q41F浮动式软密封不锈钢球阀技术规范特点: a:操作省力:球体由上下轴承支撑,减少摩擦,消除了由于进口压力推动球体与密封座形成的巨大密封负荷而造成过大的扭矩。 b:密封性能可靠:PTFE单性材料密封圈嵌于不锈钢阀座内,金属阀座尾端设有弹簧***密封圈足够的预紧力,阀门在使用过程中密封面磨损时,在弹簧作用下阀门继续***良好密封性能(3)防火结构:为防止由于骤热或火灾的出现,使聚四氟乙烯密封圈烧毁,发生较大泄漏,而助长火势,在球体与阀座间设置防火密封环,在密封圈烧毁时,在弹簧力作用下,将阀座密封环迅速推向球体上,形成金属与金属密封,起到一定程度的密封效果。耐火试验符合APl6FA和APl607标准要求。 c:自动泄压功能:当阀门中腔停滞的介质压力异常升***过弹簧的预紧力时,阀座后退脱离球体,达到自动泄压的效果,卸压后阀座自动复位。 d:排泄管路:阀体上下均设置排泄孔,可检查阀座是否发生泄漏,在工作中,阀门处于全开或全关时,卸掉中腔压力,可直接更换填料;可以排放中腔滞留物,减少介质对阀门的污染。辅助密封设置系统(客户需要请在订购时说明) e:本阀门设计有辅助的阀座紧急密封系统,一旦密封受损或出现紧急十青况而不能密封时,通过辅助密封系统向密封面注射相应的密封剂即可修复密封面,达到紧急密封。当输送的介质不洁或含有少量颗粒时,为保护密封面,确保达到可靠的密封,还可给这一装置注射相应的清洗剂或润滑剂对密封面进行清洗。
Q41F浮动式软密封不锈钢球阀技术规范造成不锈钢球阀内漏的原因 1、运输和吊装不当引起阀门的整体损伤从而造成阀门内漏; 2、出厂时,打完水压没有对阀门进行干燥处理和防腐处理,造成密封面锈蚀形成内漏; 3、施工现场保护不到位,阀门两端没有加装盲板,雨水、砂子等杂质进入阀座,造成泄漏; 4、安装时,没有对阀座注入润滑脂,造成杂质进入阀座后部,或焊接时***引起内漏; 5、阀没有在全开位进行安装,造成球体损伤,在焊接时,如果阀不在全开位,焊接飞溅物将造成球体损伤,当附有焊接飞溅物的球体在开关时进一步将造成阀座损伤,从而导致内漏; 6、焊渣等施工遗留物造成密封面划伤; 7、出厂或安装时限位不准确造成泄漏,如果阀杆驱动套或其他附件与之装配角度错位,阀门将泄漏。
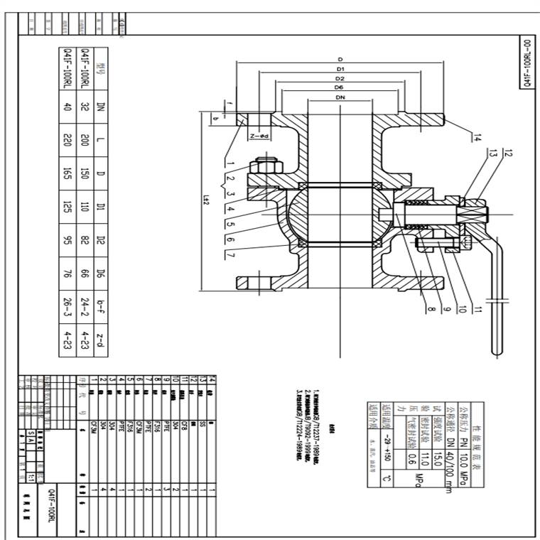
Q41F浮动式软密封不锈钢球阀技术规范主要性能规范 Capability Criterion
压力试验 Pressure Test
Q41F浮动式软密封不锈钢球阀技术规范主要零件材料 Materials Of main Parts
Q41F浮动式软密封不锈钢球阀技术规范内漏的判断方法 天然气管线上常用的是固定轴球阀,其一般的检查方法是:将阀门转动到全开或全关位,通过阀体排污嘴的排放检查是否有泄露。如果可以排干净,则证明密封良好。如果始终有压力排出,则可以认为阀门泄漏了,这时要对阀门进行相应的处理。但要特别强调的是对于GRoVEB-5和B-7A型球阀、PBV球阀、ROBERTCORT球阀只能在全关位进行检查,因为这类球阀在阀体上开了一个通道,当全开位时,用以平衡管线和阀腔的压力。但当全关位时,不会出现这种情况。
Q41F浮动式软密封不锈钢球阀技术规范内漏的处理程序 1、首先检查阀门的限位,看是否通过调整限位能解决阀门的内漏。 2、先注入一定量的润滑脂看是否能止漏,这时注入速度一定要慢,同时观察注脂枪出口压力表指针的变化来确定阀门的内漏情况。 3、如果不能止漏,有可能是早期注入的密封脂变硬或密封面损坏造成内漏。建议这时注入阀门清洗液,对阀门的密封面以及阀座进行清洗。一般最少浸泡半小时,如果有必要可以浸泡几小时甚至几天,待固化物全部溶解后再做下一步处理。在这一过程中能开关活动阀门几次。 4、重新注入润滑脂,间断的开、关阀门,将杂质排出阀座后腔和密封面。 5、在全关位进行检查,如果仍有泄漏,应注入加强级密封脂,同时打开阀腔进行放空,这样可以产生大的压差,有助于密封,一般情况下,通过注入加强级密封脂内漏可以消除。 6、如果仍然有内漏,就要对阀门进行维修或更换。
Q41F浮动式软密封不锈钢球阀技术规范 以上是为您介绍的不锈钢球阀规格、分类、日常维护方法、优点、造成不锈钢球阀内漏的原因、内漏的判断方法、内漏的处理程序。还有,绝大多数不锈钢球阀的阀座都是用聚四氟乙烯等弹性材料制造,金属与非金属材料组成的密封副,通常称为软密封,一般说来,软密封的密封性容易***,而且对密封表面的加工精度与表面粗糙度要求也不很高。所以,由于聚四氟乙烯有良好的自润滑性,与球体的摩擦磨损小,而且由于球体加工工艺的改进,使粗糙度降低,从而提高了球阀的使用寿命。 |







